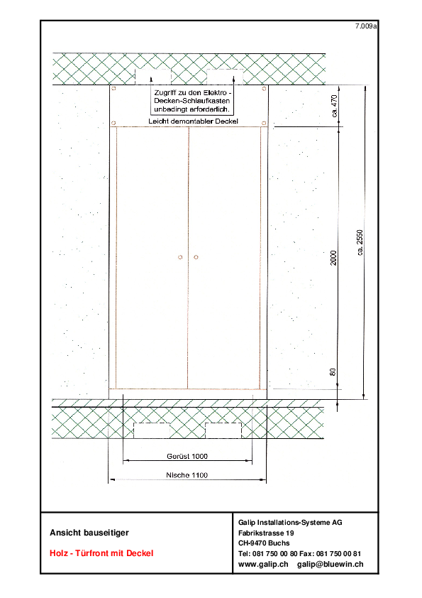
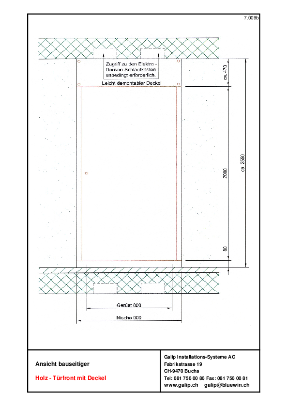
Das Galip Haustechnik-Gerüst wird vielfach in einen bauseitigen Wandschrank integriert. Im Eingangsbereich kann man das Haustechnik-Gerüst mit der Garderobe oder einem Tablarschrank kombinieren.
Kontakt
Galip
Installationssysteme AG
Widenstrasse 1
9464 Rüthi (SG)
Tel. 081 750 00 80
Fax 081 750 00 81
GALIP Unternehmensfilm

































